Have any questions?
+44 1234 567 890
DRK Rettungswache Erkrather Straße, Düsseldorf
| Projektname | DRK Rettungswache Erkrather Straße |
| Ort | Düsseldorf |
| Projektart | Sonderbauten |
| Architekt | Kirsch Architekten, Köln-Rath |
| Bauherr | Deutsches Rotes Kreuz Kreisverband Düsseldorf e.V. |
| Leistungen | LP 1-5 |
| BRI/ Flächen | 3.735,3 m³ |
| Planungs-/Bauzeit | 2013 - 2014 |
| Bildrechte | Jann Höfer |

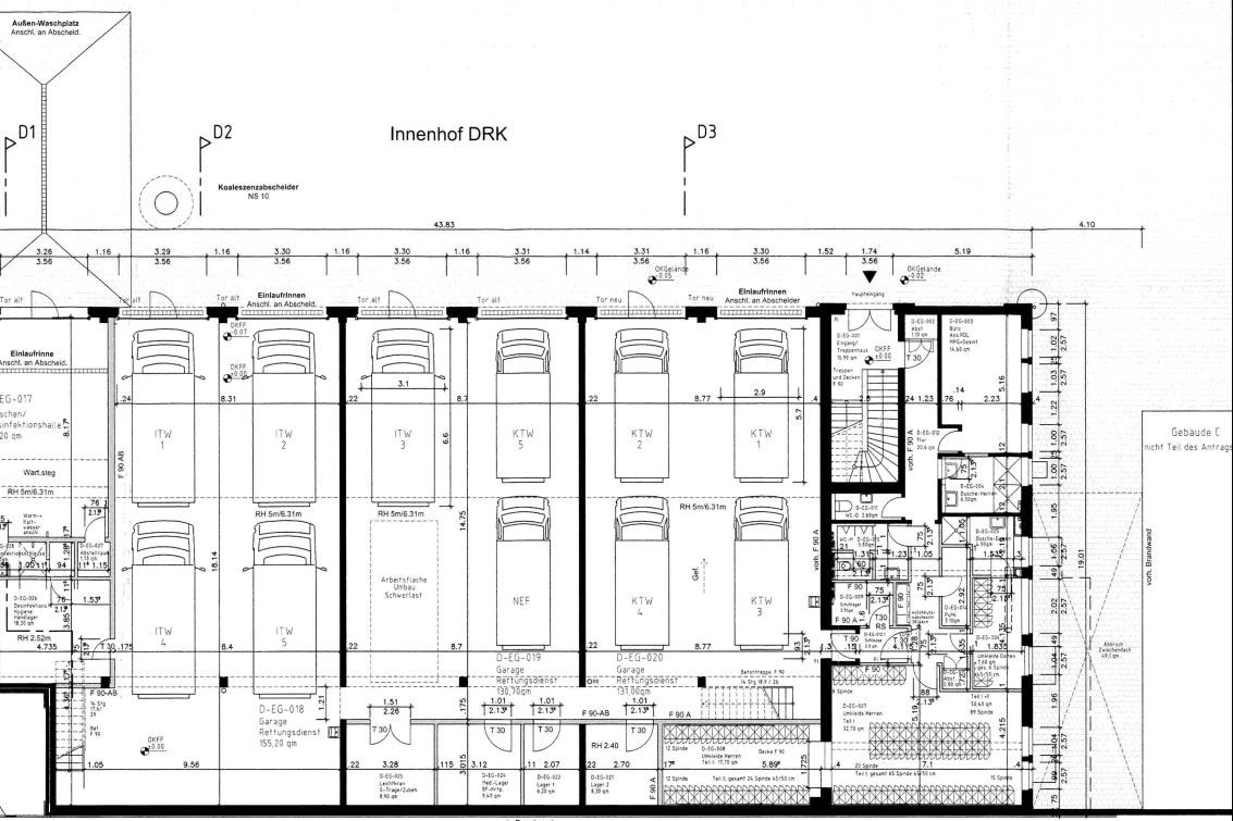
Auf der Erkrather Straße 208 in Düsseldorf befindet sich das Einsatzzentrum der Bereitschaften des DRK- Düsseldorf. Hier finden regelmäßig Gruppenabende der verschiedenen Bereitschaften statt. In der großen Wagenhalle und einer angeschlossenen Garage stehen die Einsatzfahrzeuge des Katastrophenschutzes sowie ein Teil der Rettungsdienstflotte und die Intensivtransportwagen.
Die Fahrzeughalle mit seinen Neben- und Lagerräumen wurden saniert und umgebaut. Besondere statische relevante Änderungen betrafen die Erneuerung der Bodenplatte, den Einbau von zwei Deckenebenen (für Lager, Umkleiden, etc.) im Erdgeschoss sowie den Einbau einer dachhohen Trennwand zwischen der Waschhalle und der KFZ-Halle.
Damit die Rettung und Sicherheit in Ruhe ihren Aufgaben nachgehen kann, haben wir größte Sorgfalt auf die bautechnische Sicherheit bei allen Schritten gelegt.